Dieses gemütliche Chalet kombiniert alpenländische Tradition mit rustikalem Charme und bietet alles für einen erholsamen Aufenthalt in den Bergen. Es bietet Platz für bis zu 8 Personen und ist ideal für Familien oder Gruppen, die Ruhe und Abenteuer suchen. Das Chalet bietet eine Wohnfläche von ca. 196 m².
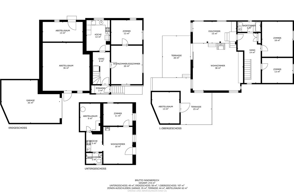
Im Untergeschoss finden Sie ein Schlafzimmer, ein Wohnzimmer mit Kajütenbetten und einen Holzofen für wohlige Wärme. Die kleine Teeecke führt in einen Keller für Vorräte. Direkt von hier gelangen Sie auf die grosse Rasenfläche, wo ein Sitzplatz zum Verweilen einlädt.
Im Erdgeschoss erwartet Sie ein offener Ess- und Wohnbereich mit einem grossen Esstisch für gesellige Mahlzeiten. Die moderne Küche mit Holzherd sorgt für eine gemütliche Atmosphäre. Ein weiteres Schlafzimmer für Gäste ist ebenfalls vorhanden.
Im Obergeschoss befinden sich zwei helle Schlafzimmer und ein praktisches Badezimmer mit Badewanne, Lavabo und WC. Vom Flur geht es über einige Treppenstufen ins Wohnzimmer, wo ein weiterer Holzofen für Gemütlichkeit sorgt. Der zweite Sitzplatz im Aussenbereich bietet einen herrlichen Blick auf die Umgebung.
Das Chalet verfügt ausserdem über eine kleine Galerie, die perfekt als Büro oder Spielecke genutzt werden kann, sowie eine Garage und ausreichend Parkplätze. Der grosszügige Skiraum mit Schuhtrockner sorgt dafür, dass Ihre Ausrüstung stets trocken und bereit für das nächste Abenteuer ist. Zusätzlicher Stauraum befindet sich im Abstellraum/Schopf, welcher auch als Sauna ausgebaut werden könnte.
Dieses Ferienhaus kann auch von Nicht-Schweizer Staatsangehörigen erworben werden.
Mittels beiliegendem Link können Sie die Liegenschaft in einem 3D-Rundgang begehen: https://my.matterport.com/show/?m=u1beTN5LDYp
Gerne stellen wir Ihnen eine Dokumentation dieser interessanten Liegenschaft zu. Wir freuen uns auf Ihre Kontaktaufnahme und stehen für weitere Informationen zur Verfügung.
Dieses und viele weitere Objekte und Bilder finden Sie unter www.remax.ch und www.newhome.ch