Dieses aussergewöhnlich grosszügige 5½-Zimmer-Einfamilienhaus mit einer beeindruckenden Wohnfläche von rund 232 m² befindet sich an privilegierter Hanglage hoch über Chur, in einem der exklusivsten und ruhigsten Wohnquartiere der Stadt. Die Lage dieser Liegenschaft zählt zweifellos zu den besten Adressen in Chur. Das Quartier ist ruhig, sonnig und bietet ein Höchstmass an Privatsphäre, ohne dabei auf die Nähe zur Stadt verzichten zu müssen.
In wenigen Minuten erreicht man das Zentrum, Schulen, Einkaufsmöglichkeiten und öffentliche Verkehrsanbindungen eine Kombination, die im urbanen Raum selten geworden ist. Die erhöhte Lage bietet eine spektakuläre, unverbaubare Aussicht über die Dächer von Chur hinweg bis in
Richtung Calanda. Hier geniessen Sie eine seltene Kombination aus Weitblick, Ruhe, Sonne und Stadtnähe ein Ort, an dem Wohnen zum Lebensgefühl wird.
Die Liegenschaft präsentiert sich in einem sehr gut unterhaltenen Zustand und überzeugt nicht nur mit ihrer gepflegten Bausubstanz, sondern auch mit moderner Haustechnik. Auf dem Dach ist eine Photovoltaikanlage installiert, die zur Eigenstromproduktion beiträgt und langfristig Energiekosten spart. Zusätzlich wurde kürzlich eine neue Luft/Wasser-Wärmepumpe eingebaut eine umweltfreundliche und effiziente Heizlösung, die den modernen energetischen Standards entspricht. Zudem verfügt die Liegenschaft über eine Komfortlüftungsanlage.
Ein zentraler Staubsauger sorgt für zusätzlichen Komfort im Alltag. Im Gang und Treppenaufgang verbindet ein Holzkubus mit integriertem Wäscheabwurf die Etagen auf praktische Weise. In diesem Kubus sind zudem Einbauschränke im Erdgeschoss und Obergeschoss integriert, die zusätzlichen Stauraum bieten und das durchdachte Raumkonzept ergänzen. Das Haus erstreckt sich über drei Etagen und überzeugt mit einem durchdachten Raumkonzept, das modernes Wohnen mit Funktionalität und Privatsphäre vereint. Im Untergeschoss befinden sich eine grosszügige Garage mit 35 m² und direktem Zugang ins Haus, zwei flexibel nutzbare Hobbyräume, eine Waschküche, ein Technikraum sowie vorbereitete Anschlüsse für eine Sauna. Umfangreiche Einbauschränke sorgen für optimalen Stauraum im Alltag.
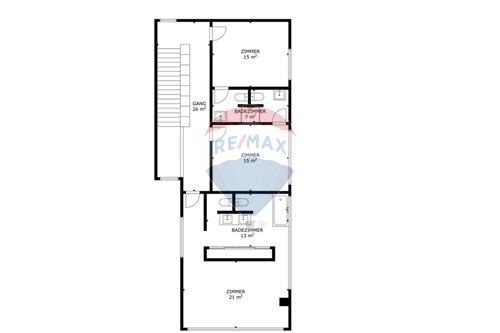
Im Erdgeschoss öffnet sich der lichtdurchflutete Wohn- und Essbereich, der durch eine grosse Fensterfront mit dem Aussenraum verschmilzt. Ein gemütlicher Schwedenofen sorgt im Winter für behagliche Atmosphäre, während die moderne Küche mit angrenzender Speisekammer viel Komfort im Alltag bietet. Ergänzt wird diese Ebene durch ein Büro sowie ein Badezimmer mit Dusche und WC.
Der Garten mit einladendem Sitzplatz ist nicht nur ein Ort zum Verweilen, sondern Ausdruck eines Lebensstils, der Ruhe, Natur und Wohnqualität vereint. Direkt vor dem Haus befindet sich ein sonniger Sitzplatz, der sich im Sommer mit einem Sonnensegel beschatten lässt ideal für Mahlzeiten im Freien oder entspannte Stunden im Schatten. Darüber hinaus laden mehrere lauschige Sitzplätze im Garten zum Verweilen ein, während Liegemöglichkeiten im Garten zum Sonnen oder Lesen einladen. Ein stilvoller Brunnen verleiht eine ruhige, fast meditative Atmosphäre. Das dazugehörige Gartenhaus bietet praktischen Stauraum für Gartengeräte oder den Grill funktional, charmant und vielseitig nutzbar. Der Aussenbereich ist der perfekte Ort für gesellige Sommerabende. Er verbindet Natur, Ruhe und Privatsphäre auf eindrucksvolle Weise ein echter Rückzugsortdirekt vor der Haustür.
Im Obergeschoss befinden sich die privaten Rückzugsorte. Zwei Kinderzimmer sind durch ein praktisches Jack & Jill-Bad verbunden jeweils mit eigenem WC und Lavabo sowie einer beidseitig zugänglichen Dusche. Das Elternschlafzimmer beeindruckt mit einer grosszügigen Fensterfront und einem traumhaften Blick über Chur bis zum Calanda, einem grosszügigen Kleiderschrank sowie einem hochwertig ausgestatteten Badezimmer mit Badewanne, grosser Dusche, Doppelwaschbecken und WC.
Dieses Haus ist der ideale Ort für Familien, Menschen mit Platzbedarf oder all jene, die das Besondere suchen ein Ort, an dem man nicht nur wohnt, sondern an dem man wirklich ankommt.
Die Liegenschaft ist im Baurecht. Mittels beiliegendem Link können Sie die Liegenschaft in einem 3D-Rundgang begehen: https://my.matterport.com/show/?m=3vAbBk2C62E
Wir freuen uns auf Ihre Kontaktaufnahme und stehen für weitere Informationen zu dieser interessanten Liegenschaft zur Verfügung.
Dieses und viele weitere Objekte und Bilder finden Sie unter www.remax.ch und www.newhome.ch