ATTRAKTIVES BAUGRUNDSTÜCK AM OBEREN DORFRAND VON BRIENZ MIT VIELSEITIGEN GESCHTALTUNGSMÖGLICHKEITEN
An einer wunderschönen und ruhigen Lage am oberen Dorfrand von Brienz erwartet dieses Grundstück seinen neuen Eigentümer.
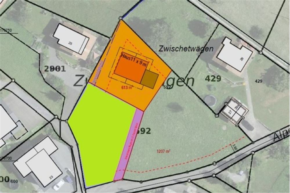
Das Grundstück hat eine Fläche von 613 m² und bietet verschiedene Überbauungsmöglichkeiten, wie beispielsweise ein grosszügiges Einfamilienhaus, ein Doppel-Einfamilienhaus oder ein kleines Mehrfamilienhaus die Entscheidung liegt ganz bei Ihnen.
Von diesem Grundstück aus geniessen Sie eine beeindruckende Aussicht auf den türkisblauen Brienzersee. Die Baulandparzelle liegt in der Wohnzone 2 (W2) und ist problemlos über die Alpgasse erschliessbar.
Erhaben über dem Dorf, nah an Erholungsgebieten und mit einer Infrastruktur, die fussläufig erreichbar ist, liegt das Grundstück an bester Lage. Die Migros ist nur 500 Meter entfernt, der Bahnhof Brienz West ist in ca. 15 Minuten zu Fuss erreichbar und die Schule in 10 Minuten.
Nutzen Sie diese Gelegenheit, um Ihr Immobilienprojekt an diesem einzigartigen Standort zu verwirklichen!